Search Choice Realty Website

Offices Available – 545 Industrial Drive Winkler
Share

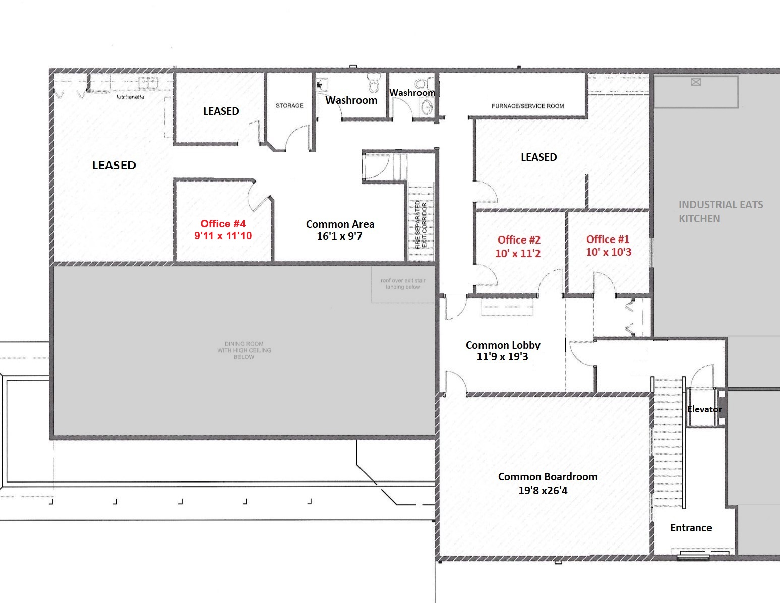
Individual 2nd floor offices for lease, located next door to Industrial Eats and The Bunker! Currently 2 offices available for immediate possession. Leases are on a month-to-month basis, and price includes utilities, wi-fi, cleaning of common areas, access to common boardroom, lobby, washrooms, and use of the common elevator. Ample parking available in the shared concrete parking lot. These offices are a great option for small businesses and professionals, contact your Realtor for a tour!

View the downloadable brochure here.

Price FOR LEASE $450/month + GST All-Inclusive

Baths 2
Heating Forced Air Electric
Fiber Optic Internet Yes
Categories Commercial

Inclusions

  • C/A

Listing Realtor®

Address Offices Available – 545 Industrial Drive
City/Town Winkler
Province Manitoba
Country Canada

Contact

PHONE 204.325.4715
FAX 204.325.1955

507 Main Street
Winkler, Manitoba   R6W 4A4
Canada

info@choicerealtyltd.com

Price FOR LEASE $450/month + GST All-Inclusive

Baths 2
Heating Forced Air Electric
Fiber Optic Internet Yes
Categories Commercial

Inclusions

  • C/A

Listing Realtor®

CLOSE
Avatar photo

Dave Kasdorf

Realtor® & Managing Partner

English

Dave has lived in Winkler for over 30 years, where he and his wife Lesley have raised their two children. Dave is the broker/managing partner at Choice Realty and has been part of the Choice Realty team since 2005. He began managing operations in 2014 before becoming partners with Nic Friesen in 2022. Apart from the real estate industry, Dave has business experience in retail, property management, and business consulting. In his down time, Dave enjoys spending time with his family at their lakeside cottage.

Contact Office

House icon

Book a Showing

"*" indicates required fields

This field is for validation purposes and should be left unchanged.
This field is hidden when viewing the form
How would you like us to contact you?
Realtor®

Choose a Realtor®

Choose a realtor®
$ % $ %
$

Disclaimer: This calculator provides a general estimate only. Please contact your financial institution for an accurate estimate or pre-approval.

Book a Walk Through

No pressure, no cost, just a friendly chat about the value of your home.

"*" indicates required fields

This field is for validation purposes and should be left unchanged.
This field is hidden when viewing the form
How would you like us to contact you?
Realtor®

Choose a Realtor®

Choose a realtor®